Terreno con proyecto para construir una vivienda en Sant Llorenç des Cardassar

Venta Terrenos San Lorenzo (Mallorca)
395.000 Eur

Descripcion

Terreno de 14200 m2 en venta en Sant Llorenç des Cardassar, en la zona de Son Negre, con proyecto entrado en el ayuntamiento para construir una vivienda unifamiliar con piscina. El terreno tiene vistas ligeramente elevadas y despejadas sobre el valle y las montañas.

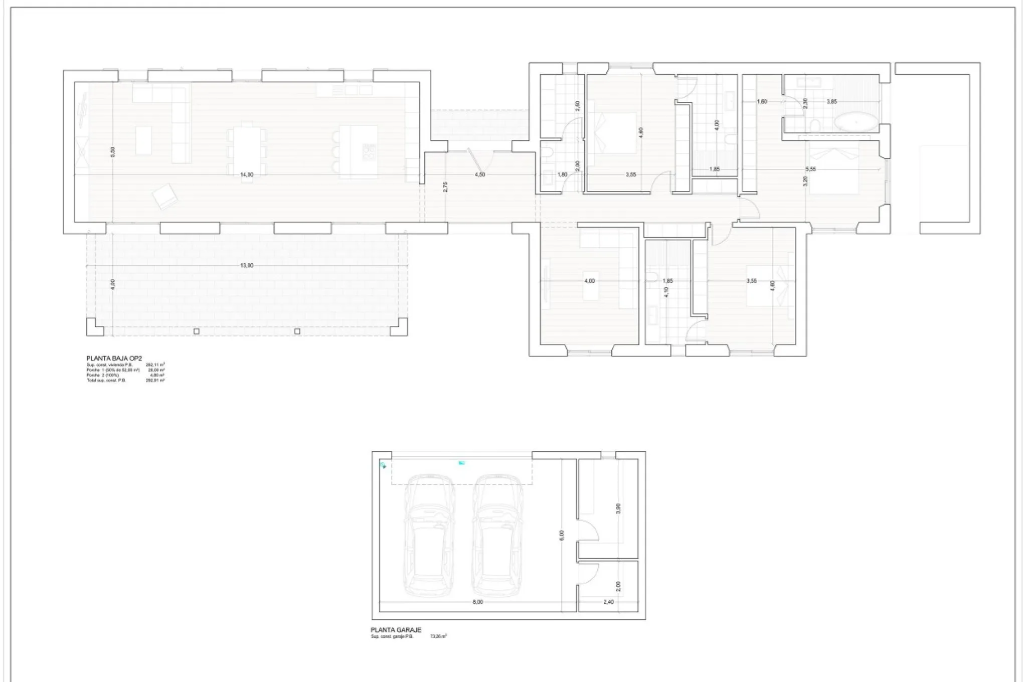
El proyecto consta de 272m2 construidos de vivienda con porches y terrazas, además de un garaje de 57m2 y una piscina con su terraza.

La vivienda tiene la siguiente composición interior:

Salón comedor con cocina todo integrado

Sala de estar multifuncional porque además de sala puede utilizarse como oficina, estudio u otra habitación.

3 habitaciones dobles con 3 baños en suite ( uno de los baños tiene ducha y bañera)

Lavandería

1 Aseo

En la zona exterior pegado a la casa está previsto un porche de 34m2 y terraza.

Esta propiedad ya tiene solicitada la Licencia del pozo de agua, además de la licencia de conexión a electricidad de Endesa.

El acceso a la finca es por camino asfaltado y, la propiedad está muy cerca de las playas de la costa de Levante, así como del núcleo urbano de Manacor.

 

Direccion

  • Provincia : Mallorca
  • Zona : San Lorenzo
  • Tipo :Terrenos

Detalles

  • Referencia: 11787
  • Zona: San Lorenzo
  • Tipo:Terreno
  • Dormitorios: 4
  • Baños: 4
  • m2 Vivienda: 272
  • m2 Solar: 14200

Video

Informacion de contacto

Agente comercial

  • Inmobiliaria Riera & Taylor
  • (+34) 680 91 54 99